
(ci-dessus : inspiration pour le projet final de rénovation d’une villa à Collonge, Genève)
TYPE DE BIEN
Maison mitoyenne
LOCALISATION
Collonge-Bellerive
DATE
2026
en cours
DURÉE
[en cours]
Extension, reconfiguration et rénovation complète par phases maîtrisées
À Collonge-Bellerive, sur la rive gauche de Genève, ce projet illustre une réalité fréquente d’une rénovation complète :
un bien existant avec du potentiel, mais dont la configuration actuelle ne répond plus aux usages modernes et à la vie de la nouvelle famille ayant récemment pris possession de ce bien.
L’objectif n’est pas simplement de rénover, mais de repenser entièrement les volumes, les circulations et les réseaux, tout en permettant une réalisation progressive.
👉 Une transformation en plusieurs phases, structurée dès le départ pour éviter les erreurs coûteuses.
Objectif des clients
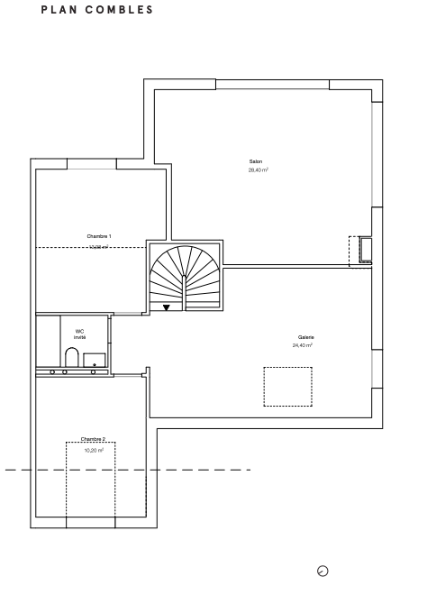
- Créer une suite parentale fermée à partir d’une mezzanine ouverte sur le salon
- Reconfigurer les espaces de vie pour plus de cohérence
- Prévoir une extension future de salle de bain
- Transformer une mezzanine enfants au-dessus d’une salle de bain agrandie et complètement rénovée
- Repenser les sols et la distribution
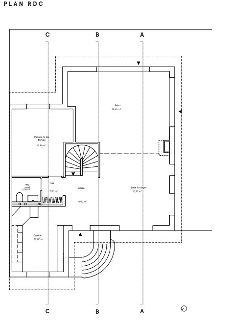
- Étendre et rénover la cuisine
- Déplacer un WC existant pour l’agrandissement de la cuisine
⚠️ Contrainte majeure :
Tout doit être phasé intelligemment, sans compromettre les futures étapes.
Notre approche : une rénovation structurée dès le départ
Dans ce type de projet, la réussite ne repose pas sur les travaux eux-mêmes, mais sur l’anticipation.
Nous avons structuré l’intervention autour de 3 principes, avec une direction des travaux correspondante :
1. Anticipation technique (ECI – intervention anticipée)
- Réservations et planification des réseaux dès la première phase avec projet d’architecte
- Coordination future plomberie / électricité
- Prévision des volumes définitifs
- Validation structurelle des extensions avec un bureau d’ingénieurs
2. Phasage intelligent
- Intervention du haut vers le bas
- Limitation des reprises futures
- Continuité technique entre les phases
3. Alignement design – budget – faisabilité
- Éviter les redessins en cours de chantier
- Garantir la cohérence globale du projet
Phase 1 – Création de la suite parentale (mezzanine)
Objectif
Transformer une mezzanine ouverte en chambre parentale fermée, prête à accueillir une salle de bain future.
Interventions clés
- Extension structurelle de la mezzanine séjour
- Fermeture des volumes
- Préparation des réservations techniques
- Anticipation des réseaux (plomberie, évacuations, électricité)
👉 Cette phase est déterminante :
elle conditionne toutes les étapes suivantes.


Phase 2 – Salle de bain enfants & extension mezzanine
Objectif
Créer un espace fonctionnel et durable pour les enfants en rénovant la salle de bains.
Interventions
- Extension structurelle de la mezzanine enfants
- Agrandissement et création / réfection complète de la salle de bain
- Coordination des réseaux déplacés et préparés en phase 1 pour la préparation future de la nouvelle cuisine et du déplacement du WC
👉 Résultat : un espace optimisé, cohérent avec le reste du projet.
Phase 3 – Déplacement du WC
Objectif
Optimiser les réseaux et les usages.
Interventions
- Déplacement du WC
- Ajustement des raccordements entre la salle de bains à l’étage et les réseaux du rez-de-chaussée et la salle de bains du sous-sol


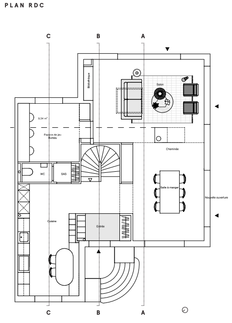
Phase 4 – Reconfiguration des espaces de vie et Cuisine
Objectif
Redéfinir les circulations et les volumes de vie et recréer une cuisine adaptée aux usages contemporains..
Interventions
- Réorganisation des pièces
- Extension de la zone cuisine
- Réorganisation des implantations
- Coordination menuiserie / réseaux / éclairage
- Amélioration de la fluidité des espaces (entrée repensée, accès à la cuisine modifié)
👉 Une cuisine pensée comme un espace central de vie de famille
Le point clé du projet
👉 Le phasage technique des réseaux
Dans ce projet, la plomberie et l’électricité ne sont pas exécutées “au fur et à mesure”.
Elles sont :
- pensées globalement dès le départ
- réparties intelligemment par phase
- installées avec anticipation pour éviter toute reprise destructive
Résultat attendu
- Une maison transformée sans compromis
- Une exécution fluide malgré la complexité et l’occupation du lieu
- Une vision globale respectée du début à la fin
- Une valorisation durable du bien immobilier
Pourquoi ce projet est intéressant
Ce type de rénovation illustre parfaitement une réalité du marché genevois :
👉 Les projets complexes ne peuvent pas être improvisés.
Ils nécessitent :
- une vision globale dès le départ
- une direction des travaux rigoureuse
- une anticipation technique poussée
Conclusion
À Collonge-Bellerive, cette transformation démontre qu’une rénovation réussie ne dépend pas uniquement du design ou des matériaux.
👉 Elle repose sur une approche structurée capable d’aligner :
- les phases
- les réseaux
- les usages
- et la vision globale du projet
FAQ Rénovations Genève
Questions :
Quelle est la complexité d’une rénovation par phases à Genève ?
Une rénovation par phases nécessite une planification technique précise, notamment pour coordonner les réseaux et éviter des reprises coûteuses.
Pourquoi anticiper les réseaux dès le début d’un projet ?
L’anticipation permet d’éviter des démolitions ultérieures et garantit la cohérence entre les différentes phases du chantier.
Une mezzanine peut-elle être transformée en chambre ?
Oui, sous réserve de faisabilité structurelle et de conformité aux normes locales, notamment en termes de hauteur et de sécurité.
Quel est le rôle d’une entreprise générale dans ce type de projet ?
Elle coordonne l’ensemble des corps de métier, anticipe les contraintes techniques et assure le bon déroulement des travaux.
Vous envisagez une rénovation similaire à Genève ? Planifiez un échange découverte
Avant de commencer, assurez-vous que votre projet est techniquement viable et structuré dès le départ.
→ Découvrir l’approche structurée de la rénovation résidentielle chez COLLET HOMES